Sie sind hier:
  1. Home
  2. Immobilien
  3. Heimwerker aufgepasst! Einfamilienhaus mit Ausbaupotenzial in Wüstenrot - Neuhütten

Heimwerker aufgepasst! Einfamilienhaus mit Ausbaupotenzial in Wüstenrot - Neuhütten

71543 Wüstenrot / Neuhütten (Karte anzeigen)
  • Offener Kamin
  • Tageslicht Badezimmer mit Dusche/Badewanne
  • Außenstellplatz
  • EBK
  • Keller
  • Garten
329.000,00 € 139 m²Wohnfläche 7Zi.
Typ
Einfamilienhaus (freistehend)

 

Etagenanzahl
3

 

Wohnfläche ca.
139 m²

 

Grundstück ca.
584 m²

 

Zimmer
7

 

Schlafzimmer
5

 

Badezimmer
2

 

Garage/ Stellplatz
6 Außenstellplätze

 

Kosten

Kaufpreis
329.000 €
Preis/m²
2.339 €/m²
 
Provision für Käufer
3,57 % inkl. MwSt.

 

Bausubstanz & Energieausweis

Baujahr
1961
Objektzustand
Renovierungsbedürftig
Heizungsart
Öl-Heizung
Wesentliche Energieträger
Öl
Energieausweis
liegt vor
Energie­ausweistyp
Verbrauchsausweis
End­energie­verbrauch
102,3 kWh/(m²*a)
Energie­effizienz­klasse
D
Baujahr laut Energieausweis  
 
1961

 

Objektbeschreibung

Dieses renovierungsbedürftige Einfamilienhaus in Neuhütten, einem Ortsteil von Wüstenrot , erbaut im Jahr 1961 und 1992 kernsaniert, bietet auf zwei Etagen insgesamt 7 Zimmer, die sich perfekt für eine Familie oder auch für individuelles Wohnen eignen. 
Durch die großzügige Raumaufteilung und die Möglichkeiten zur Veränderung und Erweiterung, zum Beispiel durch ein Appartement oder eine Einliegerwohnung mit separatem Eingang, eröffnet dieses Objekt vielfältige Nutzungsmöglichkeiten.

Beim Betreten des Hauses gelangen Sie über die Eingangstür im Erdgeschoss in den Essbereich mit offener Küche. 
Der angrenzende, helle Wohnbereich wird durch einen gemütlichen Schwedenofen zusätzlich erwärmt und schafft eine behagliche Atmosphäre. 
Des Weiteren finden Sie im Erdgeschoss ein Schlafzimmer, ein Büro sowie ein deckenhoch gefliestes Tageslichtbadezimmer mit Wanne und Dusche. Ein separates Gäste-WC ist ebenfalls vorhanden.

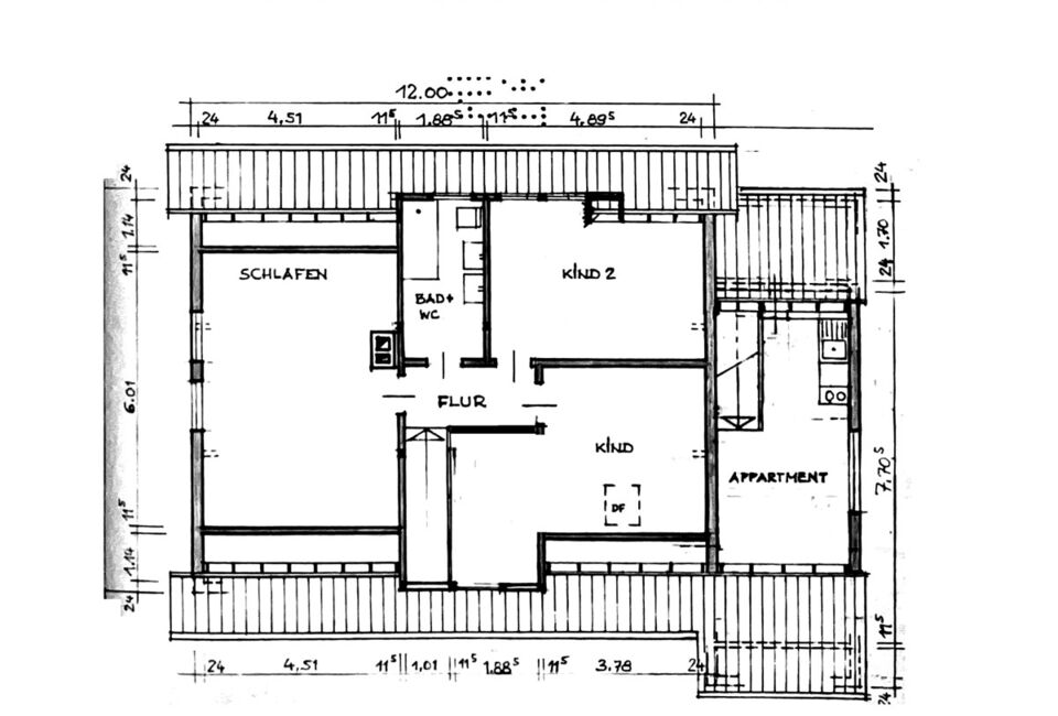
Das Obergeschoss begeistert mit einem großen, lichtdurchfluteten Schlafzimmer, das einen wunderschönen Blick auf den angrenzenden Wald bietet. Zwei weitere Schlaf- bzw. Kinderzimmer mit hellem Laminatboden lassen keine Wünsche offen. Ein weiteres nicht ausgebautes Zimmer bietet sich ideal als Badezimmer oder Büro an und lässt Ihnen kreative Gestaltungsmöglichkeiten.

Das Haus ist zudem voll unterkellert und bietet reichlich Staufläche. 
Zusätzlich gibt es noch eine lange Garage mit elektrischem Torheber, die Platz für zwei Autos bietet, sowie etwa sechs Stellplätze auf dem Grundstück.
Die großzügige Fläche rund um das Haus bietet Ihnen viel Freiraum für Gartenprojekte, Entspannung und Freizeitgestaltung.

Ausstattung

- 1991/92 Kernsaniert
- Ausbaufähiges separates Appartement / Einliegerwohnung
- Komplett Isoliert (Steinwolle)
- Öl-Zentralheizung (keine Tauschpflicht GEG)
- Steinkohle-Zentralheizung (2013)
- Zusätzliche Ofenheizung (Holz)
- Holz- und Kunststofffenster 2-fach isoliert
- Lange Reihengarage für 2 Autos
- ca. 6 Außenstellplätze
- Wasserzisterne ca. 15.000 Liter
- barrierefrei

Grundrisse und Dokumente

Lage

Das angebotene Haus befindet sich am nördlichen Ortsrand von Neuhütten, einem beschaulichen und idyllisch gelegenen Ortsteil der Gemeinde Wüstenrot. Die Lage zeichnet sich besonders durch die Nähe zum angrenzenden Wald aus, der nur etwa 300 Meter entfernt liegt und zahlreiche Möglichkeiten zur Erholung und Freizeitgestaltung in der Natur bietet.

Der Ort Neuhütten mit rund 1.500 Einwohnern verfügt über eine gute Grundversorgung. So befindet sich ein Kindergarten in nur ca. 700 Metern Entfernung und ist bequem zu Fuß oder mit dem Fahrrad erreichbar. Weiterführende infrastrukturelle Einrichtungen wie Schulen, Ärzte sowie diverse Einkaufsmöglichkeiten sind im ca. 4 Kilometer südöstlich gelegenen Wüstenrot zu finden.

Die Schnellstraße B39 ist in lediglich 2 Kilometern erreichbar, wodurch eine zügige Verbindung in die umliegenden Städte gewährleistet wird. Die Autobahnauffahrt zur A6 liegt etwa 12 Kilometer entfernt und ermöglicht eine schnelle Anbindung an das überregionale Verkehrsnetz. Die Stadt Heilbronn, mit ihrem breiten Angebot an Kultur, Bildung und Arbeitsplätzen, befindet sich in ca. 30 Kilometern Entfernung.

Diese Kombination aus naturnaher und dennoch verkehrsgünstiger Lage macht das Haus zu einem idealen Wohnort für Familien, Berufspendler und Naturliebhaber gleichermaßen.

Sonstiges

Die Objektbeschreibung beruht ganz oder zum Teil auf Angaben des Eigentümers.
Für die Richtigkeit oder Vollständigkeit übernimmt PLENUM Immobilien keine Gewähr.

71543 Wüstenrot / Neuhütten